
这2年,咖啡行业开小店备受追捧。主打外带、20平左右成为一种潮流。
带来的结果是:成本降下来,坪效提上去,生意更好做了一点。
最近,素有咖啡界“Apple”之称的蓝瓶咖啡,也开了家仅有25㎡的店。以设计闻名的蓝瓶子,是如何开小店的?
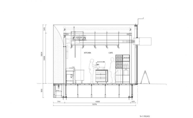
Schemata Architects设计的这家蓝瓶咖啡,是在日本开设的第11家门店,位于秋叶原。这是蓝瓶咖啡最小的店铺,建筑面积只有25平方米,也是第一家没有座位的外卖咖啡厅。
看看门店内部:



它坐落在一座具有百年历史的铁路桥(神田万世桥)下,神田万世桥是日本明治时代旧万世桥站留下的砖红桥墩空间,在2013年摇身一变成了神田、秋叶原地区的美丽商场,成为不少喜欢复古风旅客的打卡地。




在设计时,把咖啡馆融合入这个具有悠久历史的现有环境,是设计团队的主要方向。设计团队拆除了墙壁和天花板上现有的石膏板饰面,并在空间中融入了由红砖和混凝土构成的暴露结构。



同时,作为首家外卖专门店和最小的蓝瓶咖啡店,这家门店在拆除了墙壁和天花板的饰面之后,拔高了层高,视觉上更加开阔,增加了门店的空间感。即使是25㎡的面积,也不显得过分狭小和拥挤。

平面图


剖面图


评论